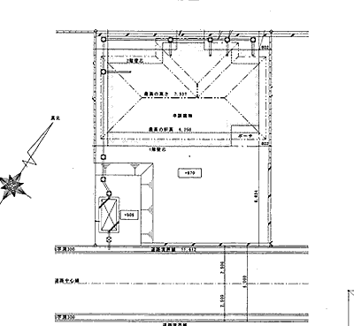
川間の杜 A-5号棟  プラン例  土地165.01u(50.00坪) 建物115.79u(34.95坪)
動画を
ご覧ください

 

動画一階 ホール
 

動画 一階 LDK


動画   キッチン
 

動画  一階和室

現像図
川間の杜A−5号棟着工前の現場、懐かしいで写真です。

 

現像図
二階の踊り場から見た
裏山の景色、竹の子の
季節がたのしみです。

現像図
(06 09 22)
内部工事も終わり
完成間近のA−5
モデル!

 

現像図
(06 12 26)
外構工事もほぼ終わり
スカッと完成したA−5
号棟、背景の緑も心地
よさそうです。
オープンハウスでも好評で
した、有難うございます。

現像図
(06 12 26)
外構工事も完全に終わり
ました。門扉の前もタイル貼りで傾斜を吸収し、品のよい玄関までのアプローチが出来ました。
 

現像図
一階和室8畳
出窓の延長に床の間が
有り広く使え、出窓の下
が二間幅の物入れにな
って居て大変便利です。
(07 03 15) 

現像図
LDKとの対面流しは
システムキッチンNS
その後ろは台所収納
と調理準備台・作業台
奥様に大変好評です。
(07 03 15)

 

配置図

 1F 実行プラン
64.45u(19.45

2F 実行プラン
51.34u(15.5

備考

 外構工事、消費税含み、売主




  
        

   

ホーム    物件情報    区画選択画面